![]()
高槻Aさん子供部屋のリフォーム事例
このページの事例は、大阪で中1の女の子、小5、小3の男の子と両親を
あわせた5人家族の子供部屋の住環境リフォームです。
もともと、住まいを子供二人を想定していたことと、
「子どもが大きくなってから間仕切りしよう」と思っていたそうで、
お姉ちゃんが中学に入っても男の子が同じ部屋のままで
広い部屋の片隅に机がぽつんと置いてあるという状況でした。
まだ同じ部屋が絶対だめな年齢ではないでしょうが、
勉強に集中しにくい状態だったようですね。
そこで
まず、カプセルホテル位のスペースですが、
お姉ちゃんの部屋を間仕切ることにしました。
但し、子供達が独立した後にはまた広いスペースとして使えるよう、
しっかりした壁をつくりこむのでなくシナの合板による
簡易な間仕切りです。
男の子二人の部屋は同性ということで、カラフルなカーテンで間仕切りました。
また既製品の2段ベッドをばらして、下に洋服収納を家具工事でつくり
ベッドを持ち上げて空間を立体活用しました。
机はシナ合板にパイプ脚をジョイントしただけのシンプルデスク
引き出しは既製品のチェストを流用してコストを抑えています。
居間、食堂に吉野杉の大きな座卓のテーブルを二つ置きました
ここで勉強することも増えたそうです。
ここがポイント
- 思っているより子どもの成長は駆け足、タイミングを見逃さずに。
- 同姓、異性 兄弟姉妹の構成で子ども部屋のリフォームプランは変わるものさらに気性に合わせた環境をつくるべし。
- 子どもが独立後のことも考えておくことが大切。
Aさんの子供部屋リフォームは、「ソファをすてれば子どもが伸びる!」6章やってみよう住まいづくり、P167、P190でくわしく紹介しています。
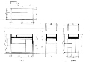
リフォーム前の子ども部屋
リフォーム後の子ども部屋
画像をクリックすると拡大表示されます。
東海地方の住まい
この住まいは、東海地方でデザイナーズハウスの分譲住宅として
建築されました。
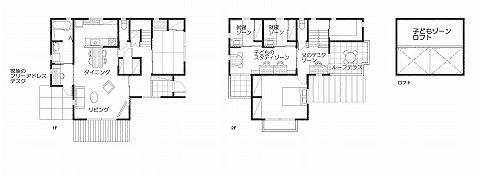
スタディゾーンとスリーピングゾーン(就寝ゾーン)を分け、お父さんの書斎とも
つながるというプランです。
収納を確保するために、子供専用のロフトがあるなど
楽しい子供部屋が出来上がりました。
1階のリビングダイニングの横、しかも水廻りと隣接して
家族が共用で使えるフリーアドレスのコンパクトな
カウンターデスクの空間を設けました。
家事コーナー、PCコーナー、お父さんの仕事、子どもの学習スペースなど
可塑性の高い子育て中のご家族にお勧めの空間です
この住まいは「ソファを捨てれば子どもが伸びる!」6章やってみよう住まいづくりP194で紹介しています。
次のページ→ 塾長がつくった子ども...






















塾長がつくった子ども...
トップページ


