![]()
市川の住まい
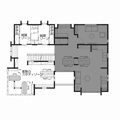
この住まいは、千葉県の市川市で計画された子ども部屋です。
スタディゾーンと就寝ゾーンを分けて、学習机も可動タイプで
自分の居心地のよいポジションでできるようにしました。
家族共有するファミリーライブラリーと一体化して
みんなが楽しみながら学べる空間をつくりました。
ここがポイント
- 就寝ゾーンでは2段ベッドを間仕切りとして利用しています
- 子どもの独立後はこの間仕切りベッドを撤去すると夫婦の趣味の空間に変身させることができます。
- 学習する位置が季節や時間により選べるので楽しい
私の住まいの変遷は「ソファを捨てれば子どもが伸びる!」6章 やってみよう住まいづくり P170、P193で詳しく紹介しています。
難波の住まい
この住まいは姉妹が共有する子ども部屋として計画されました
比較的コンパクトなスペースの中、立体収納ベッドをオーダー家具で製作し
空間を有効活用し中央にはコミュニケーションテーブルも設けています。
ここがポイント
- 同姓なのでデスクなどを共有し広々サイズを実現
- 立体ベッドを遣い収納もたくさん確保
- カラフルなアクセントで楽しい空間に
Hさんの住まいは、「ソファを捨てれば子どもが伸びる!」6章やってみよう住まいづくり、P171、P192 で詳しく紹介しています。
次のページ→ 子ども部屋リフォーム...


























塾長がつくった子ども...
トップページ


